Fachkundige und individuelle Beratung ist für uns selbstverständlich - rufen Sie uns an!
Sie erreichen unsere Hotline werktags von 10:00 bis 18:00 Uhr unter der 07171 8712 0 (Samstags: 10:00 bis 12:00 Uhr). Außerhalb Deutschlands wählen Sie +49 7171 87120. Im Dialog finden wir die optimale Klanglösung für Sie und klären etwaige Fragen oder Schwierigkeiten. Das nuForum ist seit dem 19. Juli 2023 im read-only-Modus: Das Ende einer Ära: Das nuForum schließt
Sie erreichen unsere Hotline werktags von 10:00 bis 18:00 Uhr unter der 07171 8712 0 (Samstags: 10:00 bis 12:00 Uhr). Außerhalb Deutschlands wählen Sie +49 7171 87120. Im Dialog finden wir die optimale Klanglösung für Sie und klären etwaige Fragen oder Schwierigkeiten. Das nuForum ist seit dem 19. Juli 2023 im read-only-Modus: Das Ende einer Ära: Das nuForum schließt
Hilfe bei 5.1 Aufstellung
Hilfe bei 5.1 Aufstellung
Hallo,
ich brauch dringend Hilfe bei der Aufstellung meiner 5.1 Anlage.
Sie besteht aus folgenden Komponenten:
Aw1000,
Nuline 32,
CS42,
DS22.
Ich habe Sie schon seit gut zwei Jahren in einer "Über-Eck" Aufstellung. Wirklich zufrieden bin ich so eigentlich nicht. Also es geht bestimmt besser.
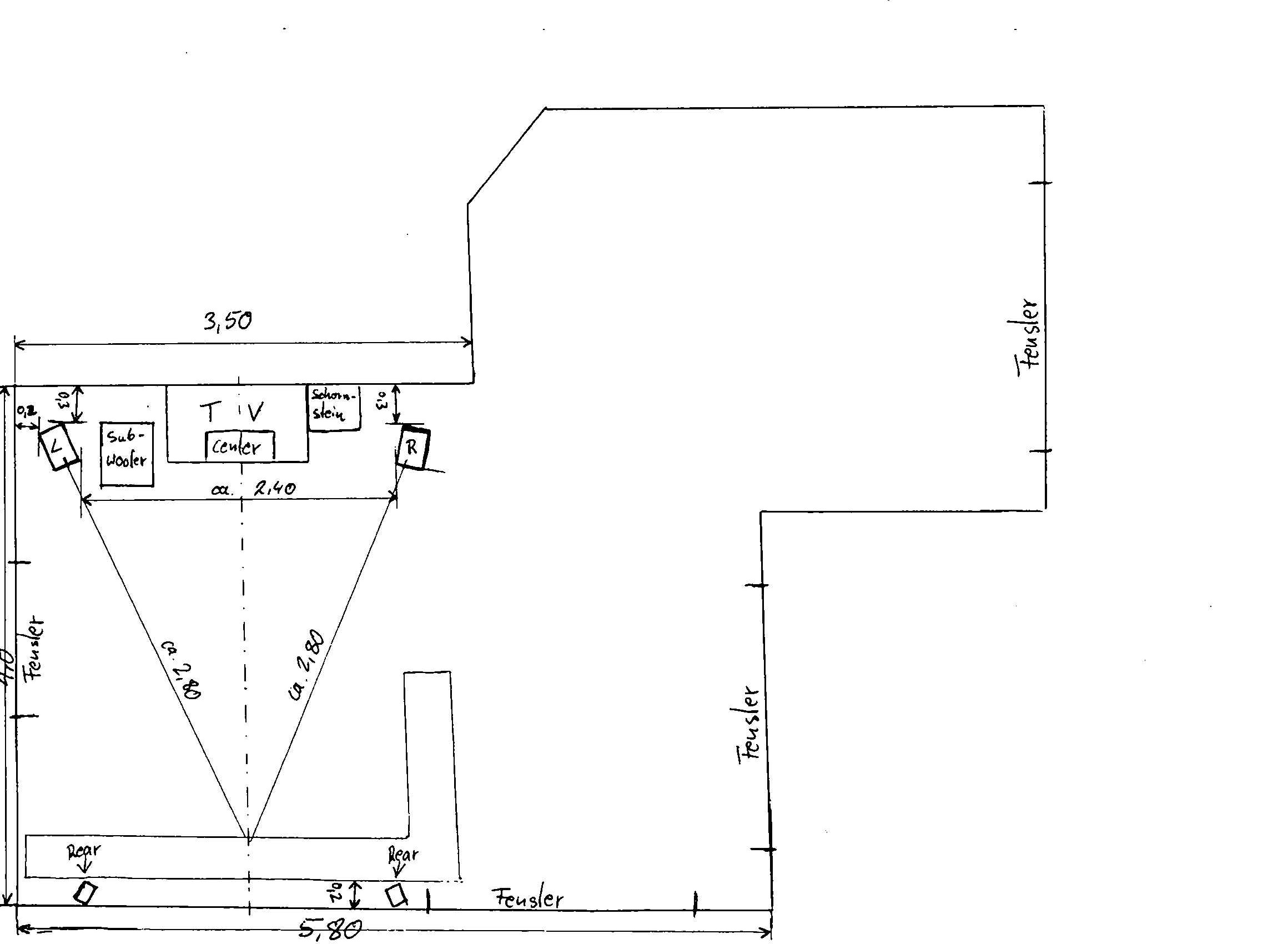
Da jetzt noch ein Beamer dazu kommen soll, passt diese Aufstellung nun gar nicht mehr.
Ich habe mir mit viel Ausmessen und Aufzeichnen jetzt mal eine neue Aufstellung überlegt, die auf dem Papier nicht mal schlecht aussieht (denke ich).
Da der Raum sehr hellhörig und nach einer Seite (rechts) ziemlich offen ist, habe ich jetzt bedenken, dass es sich nicht wirklich gut anhört.
Ich könnte es natürlich ausprobieren, wollte aber lieber ein paar Expertenmeinungen einholen bevor ich dann loslege.
Anbei zwei Bilder:
Einmal die jetzige "alte" Aufstellung und einmal die "neue" Aufstellung.
Ich würde mich über ein paar Meinungen und Anregungen freuen.
Bis dahin schon mal vielen Dank und viele Grüße
rocky
ich brauch dringend Hilfe bei der Aufstellung meiner 5.1 Anlage.
Sie besteht aus folgenden Komponenten:
Aw1000,
Nuline 32,
CS42,
DS22.
Ich habe Sie schon seit gut zwei Jahren in einer "Über-Eck" Aufstellung. Wirklich zufrieden bin ich so eigentlich nicht. Also es geht bestimmt besser.
Da jetzt noch ein Beamer dazu kommen soll, passt diese Aufstellung nun gar nicht mehr.
Ich habe mir mit viel Ausmessen und Aufzeichnen jetzt mal eine neue Aufstellung überlegt, die auf dem Papier nicht mal schlecht aussieht (denke ich).
Da der Raum sehr hellhörig und nach einer Seite (rechts) ziemlich offen ist, habe ich jetzt bedenken, dass es sich nicht wirklich gut anhört.
Ich könnte es natürlich ausprobieren, wollte aber lieber ein paar Expertenmeinungen einholen bevor ich dann loslege.
Anbei zwei Bilder:
Einmal die jetzige "alte" Aufstellung und einmal die "neue" Aufstellung.
Ich würde mich über ein paar Meinungen und Anregungen freuen.
Bis dahin schon mal vielen Dank und viele Grüße
rocky
- TasteOfMyCheese
- Star

- Beiträge: 4343
- Registriert: So 25. Jul 2010, 22:34
- Wohnort: Malsch bei Karlsruhe
- Been thanked: 1 time
Re: Hilfe bei 5.1 Aufstellung
Hey,
So, dann mal zur neuen Aufstellung meine Meinung:
Ich finde sie schon recht gelungen, wenn du ein paar cm mehr Wandabstand hinter den Boxen rausholen kannst, tut das ihnen, bzw. dem Klang mit Sicherheit gut. Die linke Frontbox sollte auch noch ein paar cm von der linken Wand weg, wenn das geht.
Hast du einen Vorhang (möglichst einen dicken) vor dem Fenster?
befindet sich in dem Raum ein Teppich oder andere absorbierende oder streuende Einrichtungsstücke?(Bücherregale, Pflanzen, etc.)
Kannst du das Sofa weiter von der Rückwand entfernen? Das wäre klangtechnisch wichtig, da es sonst vermutlich dröhnen wird.
Viele Grüße
Berti
Jop, ich muss sagen, deine neue Aufstellung gefällt mir wesentlich besser. Du wirst wohl Probleme mit Dröhnen gehabt haben und dazu noch ein winziges bzw. viel zu spitzes Stereo-Dreieck.rocky hat geschrieben:Also es geht bestimmt besser.
So, dann mal zur neuen Aufstellung meine Meinung:
Ich finde sie schon recht gelungen, wenn du ein paar cm mehr Wandabstand hinter den Boxen rausholen kannst, tut das ihnen, bzw. dem Klang mit Sicherheit gut. Die linke Frontbox sollte auch noch ein paar cm von der linken Wand weg, wenn das geht.
Hast du einen Vorhang (möglichst einen dicken) vor dem Fenster?
befindet sich in dem Raum ein Teppich oder andere absorbierende oder streuende Einrichtungsstücke?(Bücherregale, Pflanzen, etc.)
Kannst du das Sofa weiter von der Rückwand entfernen? Das wäre klangtechnisch wichtig, da es sonst vermutlich dröhnen wird.
Viele Grüße
Berti
Re: Hilfe bei 5.1 Aufstellung
hallo,
also die linke Box kann ich auf ca. 30cm erhöhen, hinter den Boxen vielleicht auf 35cm und hinter dem Sofa ca. 30cm. Ob das überhaupt etwas bringt?! Ist ja nicht gerade viel mehr.
Mit Dröhnen hatte ich eigentlich keine Problem, da ich bei 120hz getrennt habe und vor dem Sub ein Antimode hängt.
Der ganze Wohnbereich ist noch ziemlich leer und Teppich ist schon in Planung, sollte dann großzügig zwischen der Lautsprecherfront und Sofa.
Gardinen sind als "Schals" vorhanden, also nicht unbedingt zum zuziehen.
Und wie sieht das mit der rechten offenen Seite aus, sind da Probleme zu erwarten?
Gruß
rocky
also die linke Box kann ich auf ca. 30cm erhöhen, hinter den Boxen vielleicht auf 35cm und hinter dem Sofa ca. 30cm. Ob das überhaupt etwas bringt?! Ist ja nicht gerade viel mehr.
Mit Dröhnen hatte ich eigentlich keine Problem, da ich bei 120hz getrennt habe und vor dem Sub ein Antimode hängt.
Der ganze Wohnbereich ist noch ziemlich leer und Teppich ist schon in Planung, sollte dann großzügig zwischen der Lautsprecherfront und Sofa.
Gardinen sind als "Schals" vorhanden, also nicht unbedingt zum zuziehen.
Und wie sieht das mit der rechten offenen Seite aus, sind da Probleme zu erwarten?
Gruß
rocky
- TasteOfMyCheese
- Star

- Beiträge: 4343
- Registriert: So 25. Jul 2010, 22:34
- Wohnort: Malsch bei Karlsruhe
- Been thanked: 1 time
Re: Hilfe bei 5.1 Aufstellung
Naja, schaden wird das auf jeden Fall nichtrocky hat geschrieben:also die linke Box kann ich auf ca. 30cm erhöhen, hinter den Boxen vielleicht auf 35cm und hinter dem Sofa ca. 30cm. Ob das überhaupt etwas bringt?! Ist ja nicht gerade viel mehr.
Dadurch, dass die Seite offen ist, braucht der Schall relativ lange, bis er von dort wieder reflektiert wird. Daher wird das wohl kein großes Problem machen, es sei denn du hast da eine Art Echo, das müsstest du mit einem Klatschtest herausfinden können.rocky hat geschrieben:Und wie sieht das mit der rechten offenen Seite aus, sind da Probleme zu erwarten?
Grüße
Berti
Re: Hilfe bei 5.1 Aufstellung
wie mache ich den Klatschtest? Da wo die Lautsprecher stehen klatscht einer und ich horche am Hörplatz?
Also Echos habe ich leider, nur sind sie nicht überall gleich stark. Habe mal irgendwo gelesen, dass es schon reicht die Deckenecken mit Absorber zu verunstalten. Oder gibt es diese auch in schön?
Und wird es nicht durch die offene Seite sehr linkslastig, dadurch dass die linke Box den Schall viele früher reflektiert?
Gruß
Also Echos habe ich leider, nur sind sie nicht überall gleich stark. Habe mal irgendwo gelesen, dass es schon reicht die Deckenecken mit Absorber zu verunstalten. Oder gibt es diese auch in schön?
Und wird es nicht durch die offene Seite sehr linkslastig, dadurch dass die linke Box den Schall viele früher reflektiert?
Gruß
- TasteOfMyCheese
- Star

- Beiträge: 4343
- Registriert: So 25. Jul 2010, 22:34
- Wohnort: Malsch bei Karlsruhe
- Been thanked: 1 time
Re: Hilfe bei 5.1 Aufstellung
rocky hat geschrieben:wie mache ich den Klatschtest? Da wo die Lautsprecher stehen klatscht einer und ich horche am Hörplatz?
Es gibt sie auch in schön, entweder machst du das selbst, indem du die Absorber mit dünnem Stoff beziehst oder du gibst eine Menge Geld dafür aus und kaufst sie direkt "schön".rocky hat geschrieben:Habe mal irgendwo gelesen, dass es schon reicht die Deckenecken mit Absorber zu verunstalten. Oder gibt es diese auch in schön?
Ich weiß allerdings nicht, ob es genügt, die Ecken zu machen. Damit kann man häufig Flatterechos bekämpfen und es wird den gesamten Nachhall herunter setzen, daher schadet es also mit Sicherheit nicht!
Grüße
Berti
Re: Hilfe bei 5.1 Aufstellung
hallo nochmal,
wie weit sollte denn das Sofa von der Rückwand entfernt sein? Beeinträchtigt das nur den Bassbereich oder auch Hoch- und Mittelton?
Da ja ein Beamer-kauf ansteht, wollte ich auch mal den idealen Abstand bei Full HD zur Leinwand wissen. Danach richtet sich ja auch der Wandabstand vom Sofa.
Mein Wohnzimmerbelag besteht aus Fliesen, dazu die großen Terrassenfenster mit der noch etwas kahlen Ausstattung könnte vielleicht die Hellhörigkeit verursachen.
Teppich soll deswegen ein Hochflorteppich (Florhöhe ca. 4,5cm, ca. 4,5kg/m2) in 2x2m werden. Dieser sollte mittig zwischen Lautsprecherfront und Hörplatz.
Würde das dann schon mal etwas bringen?
Grüße
rocky
wie weit sollte denn das Sofa von der Rückwand entfernt sein? Beeinträchtigt das nur den Bassbereich oder auch Hoch- und Mittelton?
Da ja ein Beamer-kauf ansteht, wollte ich auch mal den idealen Abstand bei Full HD zur Leinwand wissen. Danach richtet sich ja auch der Wandabstand vom Sofa.
Mein Wohnzimmerbelag besteht aus Fliesen, dazu die großen Terrassenfenster mit der noch etwas kahlen Ausstattung könnte vielleicht die Hellhörigkeit verursachen.
Teppich soll deswegen ein Hochflorteppich (Florhöhe ca. 4,5cm, ca. 4,5kg/m2) in 2x2m werden. Dieser sollte mittig zwischen Lautsprecherfront und Hörplatz.
Würde das dann schon mal etwas bringen?
Grüße
rocky
- TasteOfMyCheese
- Star

- Beiträge: 4343
- Registriert: So 25. Jul 2010, 22:34
- Wohnort: Malsch bei Karlsruhe
- Been thanked: 1 time
Re: Hilfe bei 5.1 Aufstellung
Hey,
der Wandabstand des Sofas beeinflusst primär den Bass. Ein klein wenig Mitten und Höhen senkt man durch die etwas verminderte Reflektion auch ab, aber das ist nicht viel. Das Dröhnen direkt an der Wand jedoch zerstört jeglichen Musikgenuss.
Die Sache mit dem Teppich hört sich sehr gut an, im wahrsten Sinne des Wortes.
Grüße
Berti
der Wandabstand des Sofas beeinflusst primär den Bass. Ein klein wenig Mitten und Höhen senkt man durch die etwas verminderte Reflektion auch ab, aber das ist nicht viel. Das Dröhnen direkt an der Wand jedoch zerstört jeglichen Musikgenuss.
Die Sache mit dem Teppich hört sich sehr gut an, im wahrsten Sinne des Wortes.
Grüße
Berti
Re: Hilfe bei 5.1 Aufstellung
hallo,
habe jetzt die neue Lautsprecheranordnung fertig gestellt, der Teppich ist auch schon da.
Leider werden die Höhen bei größerer Lautstärke doch sehr unangenehm. Gerade der Center ist sehr dominant.
Es sind aber alle Lautsprecher gleich eingepegelt.
So kommt natürlich nicht wirklich ein entspannter Hörgenus zustande und darum spiele ich mit dem Gedanken, Basotect-Absorber hinter den Hörplatz zu basteln.
Habe das jetzt erstmal mit dicken Kissen ausprobiert und man merkt schon wie die Flatterechos abnehmen.(Klatschtest)
Ich glaube, ich bin auf dem richtigen Weg und hoffe noch ein paar Tipps von euch zu bekommen, damit ich diese Hellhörigkeit einigermaßen in den Griff bekomme.
Meine Freundin ist natürlich nicht sehr von der Absorberidee angetan aber ich denke man kann die Absorber als Art Bild (nur ohne was drauf) gestalten.
MfG
rocky
habe jetzt die neue Lautsprecheranordnung fertig gestellt, der Teppich ist auch schon da.
Leider werden die Höhen bei größerer Lautstärke doch sehr unangenehm. Gerade der Center ist sehr dominant.
Es sind aber alle Lautsprecher gleich eingepegelt.
So kommt natürlich nicht wirklich ein entspannter Hörgenus zustande und darum spiele ich mit dem Gedanken, Basotect-Absorber hinter den Hörplatz zu basteln.
Habe das jetzt erstmal mit dicken Kissen ausprobiert und man merkt schon wie die Flatterechos abnehmen.(Klatschtest)
Ich glaube, ich bin auf dem richtigen Weg und hoffe noch ein paar Tipps von euch zu bekommen, damit ich diese Hellhörigkeit einigermaßen in den Griff bekomme.
Meine Freundin ist natürlich nicht sehr von der Absorberidee angetan aber ich denke man kann die Absorber als Art Bild (nur ohne was drauf) gestalten.
MfG
rocky
- TasteOfMyCheese
- Star

- Beiträge: 4343
- Registriert: So 25. Jul 2010, 22:34
- Wohnort: Malsch bei Karlsruhe
- Been thanked: 1 time
Re: Hilfe bei 5.1 Aufstellung
Naja, so ein paar Platten Basotect verbessern den Nachhall schon sehr deutlich. Ich habe meine mit Balsaholz verkleidet. Das kannst du in meiner Galerie sehen. Natürlich kannst du davor auch noch Stoff spannen. Ich würde mindestens 5cm tiefes Basotect verwenden.
Grüße
Berti
Grüße
Berti

